Aufzugsanlagen
Aufzugzuganlagen
Aufzugsanlagen müssen barrierefrei auffindbar, zugänglich und nutzbar sein. Neben der Vorhaltung der notwendigen Bewegungsflächen sind Befehlsgeber, Anzeigen und Notruf nach dem Zwei-Sinne-Prinzip zu gestalten.
Dies wird z. B. erreicht, wenn
- der Fahrkorb mindestens dem Typ 2 nach DIN EN 81-70 (2021-06), Tabelle 3 entspricht; für Aufzüge mit Übereckanordnung der Türen muss der Fahrkorb mindestens Typ 4 nach DIN EN 81-70 (2021-06),Tabelle 3 entsprechen;
- Schacht- und Fahrkorbtüren nach Tabelle 1, Zeile 1 und 2 ausgeführt werden;
- die Kommunikation über den Notruf nach dem Zwei-Sinne Prinzip erfolgt. Die Rückmeldung, dass der Notruf registriert wurde, muss sowohl blinden als auch hörbehinderten Personen (z. B. Videosystem, Bildschirmsystem) verständlich vermittelt werden.
Eine barrierefreie Nutzbarkeit für alle Personen nach DIN EN 17210 (2021-08), 10.4.12 a) sollte durch Anordnung eines horizontalen und eines vertikalen Tableaus im Fahrkorb sichergestellt werden. Horizontale Tableaus in Fahrkörben sind mit extragroßen Befehlsgebern nach DIN EN 81-70 (2021-06), Anhang B auszustatten.
gemäß DIN EN 81-70 Tabelle 3
Die Aufzüge müssen mindestens Typ 2 entsprechen.
Aufzugstyp 2 für 630 kg
Aufzugstyp 2 für 630 kg
| Fahrkorb B x T: | 1100 x 1400 mm |
| lichte Türbreite: | 900 mm |
| Nutzer: | Rollstuhlbenutzer mit einer Begleitperson 1 Rollstuhlbenutzer mit einem Hand-Rollstuhl nach EN 12183 oder einem elektrisch angetriebenen Rollstuhl der Klassen A oder B nach EN 12184 Personen mit Gehhilfen (z. B. Gehstock, Krücken oder Rollgestelle) ev. muss der Fahrkorb wegen zu geringer Wendefläche rückwärts verlassen werden |
| Nutzungsart: | Mindestgröße nach DIN 18040 für Neubau |
| Tipp: | Rollstühle der Klasse B sind durch ihre kleinen Abmessungen/ Räder bevorzugt für den Innenraum. Die Hindernissüberwindung ist dadurch im Außenbereichen eingeschränkt. Elektrorollstühle für den Innenraum werden meist dann verordnet, wenn die Benutzung eines handbetriebenen Rollstuhls aufgrund der Behinderung nicht mehr möglich ist. |
MBO 2002, zuletzt geändert durch Beschluss der Bauministerkonferenz 26./24.09.2024
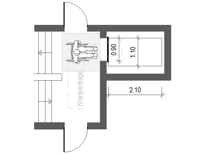
Gebäude mit einer Höhe nach § 2 Abs. 3 Satz 2 von mehr als 13 m müssen Aufzüge in ausreichender Zahl haben. Von diesen Aufzügen muss mindestens ein Aufzug Kinderwagen, Rollstühle, Krankentragen und Lasten aufnehmen können und Haltestellen in allen Geschossen haben. Dieser Aufzug muss von allen Wohnungen in dem Gebäude und von der öffentlichen Verkehrsfläche und von allen Wohnungen in dem Gebäude aus stufenlos erreichbar sein. Fahrkörbe zur Aufnahme einer Krankentrage müssen eine nutzbare Grundfläche von mindestens 1,10 m x 2,10 m, zur Aufnahme eines Rollstuhls von mindestens 1,10 m x 1,40 m haben.
privater Wohnungsbau
Im privaten Wohnungsbau (EFH) wird oft der Aufzugtyp 1 bis 450 kg mit dem Nutzer abgestimmt.
Aufzugstyp 1 bis 450 kg
| Fahrkorb B x T: | 1000 x 1300 mm |
| lichte Türbreite: | 800 mm |
| Nutzer: | Rollstuhlbenutzer ohne Begleitperson 1 Rollstuhlbenutzer mit einem Hand-Rollstuhl nach EN 12183 oder einem elektrisch angetriebenen Rollstuhl der Klasse A nach EN 12184 ohne Begleitperson Personen mit Gehhilfen (z. B. Gehstock) und für Personen mit sensorischen und geistigen Behinderungen |
| Nutzungsart: | bestehende Gebäude mit Platzmangel |
Bewegungsfläche
Bewegungsfläche vor dem Aufzug
Gegenüber von Aufzugstüren dürfen keine abwärts führenden Treppen angeordnet werden. Sind sie dort unvermeidbar, muss ihr Abstand mindestens 300 cm betragen.
Vor den Aufzugstüren ist eine Bewegungs- und Wartefläche von mindestens 150 cm × 150 cm zu berücksichtigen.
Die Bewegungsfläche vor Fahrschachttüren muß mindestens 150 cm breit und mindestens 150 cm tief sein. Sie darf sich mit Verkehrswegen und anderen Bewegungsflächen überlagern. Gegenüber von abwärtsführenden Treppen ist ein 300 cm Abstand erforderlich.
In der DIN EN 81-70 werden Anforderungen für Befehlsgeber und Anzeigen im Fahrkorb und den Haltestellen, Notrufeinrichtung, Maßnahmen für blinde und sehbehinderte Personen, Angaben zu Klappsitz, Ausstattung Spiegel bei Aufzugstyp 1 und 2 geregelt.
Die DIN 18040-2 verweist hinsichtlich der Befehlsgeber auf den Anhang G in der DIN EN 81-70.
Es kommt dadurch zu Abweichungen hinsichtlich der Höhe wie sie in der DIN 18040 gefordert wird:
- das Achsmaß von Greifhöhen und Bedienhöhen beträgt grundsätzlich 85 cm über OFF.
- Werden mehrere Bedienelemente, z. B. mehrere Lichtschalter, übereinander angeordnet, darf das Achsmaß des obersten Bedienelementes 105 cm nicht überschreiten, das Achsmaß des untersten Bedienelementes 85 cm nicht unterschreiten.
Nicht eindeutig ist die Anordnung des Befehlgebers an der Haltestelle. Laut DIN 18040-2 wird bei seitlicher Anfahrt ein Abstand von mindestens 50 cm zu Hauptschließkanten gefordert. Nach DIN EN 81-70 lautet die Forderung für Einzelaufzüge in unmittelbarer Nähe.
Infos bei Herstellern bestellen
















